Das Ziel unserer Grünen Oase am Schwarzen Meer war es ein bezahlbares Eigenheim für einen 2-Personen-Haushalt nach Deutschen Standards (getrennte Hauswände, erhöhte Dämmwerte, natürliche Materialien usw.) und bulgarischer Wohlfühlatmosphäre zu schaffen.
Die Häuser sind in Massivbauweise von unserem deutschen Architekten Herrn Meinrad Ladleif konzipiert.
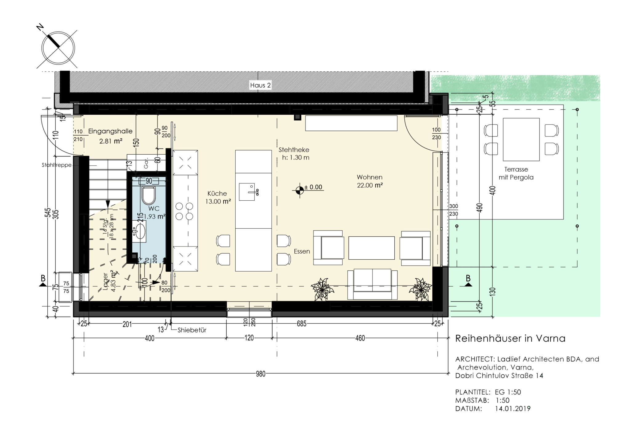
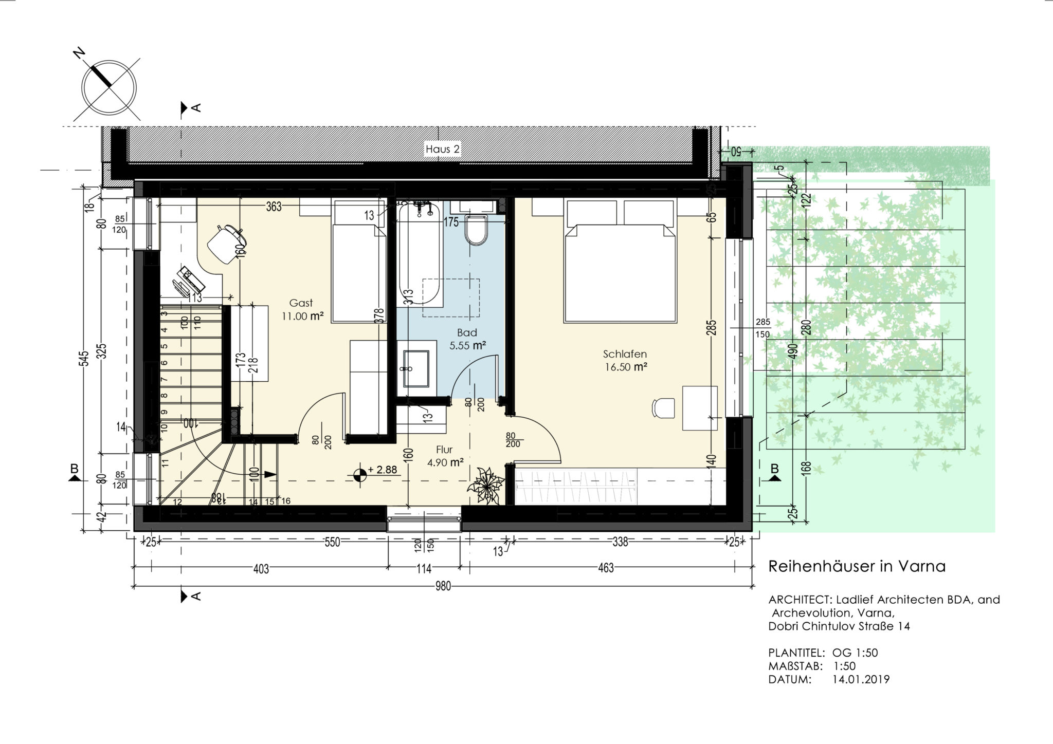
Jedes Reihenhaus hat 2 Etagen und 85,86 qm Wohnfläche nach DIN 277 zuzüglich einem kleinen Gartenteil vor und hinter dem Haus. Die Ausrichtung der Reihenhäuser ist nach Süd-Ost. Das Haus hat folgende Zimmer:
- Bad
- WC
- Schlafzimmer
- Gästezimmer
- Wohn- / Küchenbereich
- Terasse
Im Grundpreis ist keine Möblierung dabei und Sie könnten ihr Interieur aus Deutschland mitnehmen. Auf Anfragen helfen wir Ihnen aber auch bei der Einrichtung mit Dienstleistern vor Ort. Im WC sowie im Bad sind Toiletten- und Waschbecken vorinstalliert, im Bad ist zusätzlich eine Dusche integriert. Auf Wunsch ist im Bad auch die Integrierung einer Badewanne möglich.
Im Bad, dem WC sowie dem Eingangs- und Küchenbereich befinden sich Fliesen, in den restlichen Räumen können Sie wählen zwischen Fliesen und Laminat.
Neben dem Reihenhaus erwerben unsere sorgfältig ausgewählten Bewohner Sondernutzungsrechte an Stellplätzen und Grünflächen.
Die Siedlung befindet sich aktuell noch im Bau und wird am Ende aus 25 Reihenhäusern bestehen. Jedes Reihenhaus erhalten Sie (bezugsfertig) ab einem Kaufpreis von 105.000 Euro und 110.000 Euro.

Lage unserer Oase am Schwarzen Mehr
Unsere grüne Enklave liegt im Süden Warnas und ist 15 Minuten von der Stadtmitte entfernt. Der nächste Strand (Kamchia) ist ebenfalls nur 15 Minuten entfernt. Man hat von der Anhöhe auf der die Siedlung steht einen Blick bis zum Meer. Bis zum internationalen Flughafen in Warna fährt man 25 Minuten.
Exposé
Aktuelle Bilder vom Bau
Ablauf bei Interesse an einem Haus in unserer Reihenhaussiedlung
Wenn Sie Lust haben ein Teil unserer Gemeinschaft in Warna zu werden, würden wir wie folgt vorgehen:
- Schauen Sie sich gern vorab die bisher gebauten Häuser und die Lage unserer Baugrundstücke an
- Wir schließen einen Vorvertrag
- Im Planungsprozess (für etwaige Sie Sonderwünsche) wird keine Vorauszahlung allerdings ein Bonitätsnachweis fällig
- Sobald mit den Bauarbeiten begonnen wird, ist eine Anzahlung in Höhe von 10 % fällig
- Nach Rohbaufertigstellung sind weitere 25 % des Komplettpreises zu entrichten
- Kurz vor Fertigstellung ist der Restbetrag zu zahlen woraufhin die notarielle Beurkundung und die Schlüsselübergabe stattfindet. Der Kaufvertrag wird durch einen bulgarischen Notar beurkundet. Es wird (und muss) ein vereidigter Dolmetscher vor Ort anwesend sein.